1
Anzahl der Objekte: 1 | 1
Obj.: 1 | 1

Produktion, Lager mit sehr guter Verkehrsanbindung

Impressionen Halle / Lager / Produktion Nürnberg
Impressionen
12.900,- €
 
Impressionen Halle / Lager / Produktion Nürnberg
Impressionen
Impressionen Halle / Lager / Produktion Nürnberg
Impressionen
Impressionen Halle / Lager / Produktion Nürnberg
Impressionen
Objekt-Bild Halle / Lager / Produktion Nürnberg
Objekt-Bild
Strassenansicht Halle / Lager / Produktion Nürnberg
Strassenansicht
Anlieferung Halle / Lager / Produktion Nürnberg
Anlieferung

Objektart

Halle / Lager / Produktion

Adresse

90471 Nürnberg

Objektdaten

Objekt-Nr. VH-06703
Fläche (ca.) 1.791 m²
Kaltmiete 12.900,- €
Informationen
Nutzfläche (ca.)
1.791 m²
Ausstattung
Details
Energieausweis Baujahr
1980

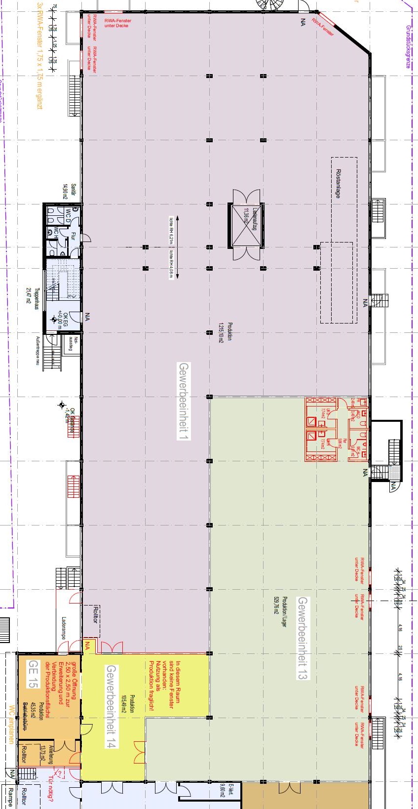
Die Produktionshalle mit Lager Büro wurde ursprünglich als Lebkuchenfabrik genutzt. Die Erdgeschoßfläche ist voll unterkellert. Bodenbelastung 1.000 kg/m². Das gesamte Anwesen ist mit zwei Transformatoren mit jeweils 1.000 kVA ausgestattet, deswegen sind einige Mietflächen eventuell auch als Rechenzentrum geeignet. Stahlbeton Konstruktion mit den Seitenwänden aus Gasbeton. Geschossdecken Stahlbetonkonstruktion. Die Innentrennwände sind größtenteils gemauert. EG ca. 5.227 m² Produktionsfläche, UG ca. 4.919 m² Lager, OG ca. 1.074 m² Büro, Wohnung, Lager. Flachdach auf Stahlbetonkonstruktion. Dacheindeckung geschieferte Dachpappe. Hallenhöhe im EG ca. 4,50 m bis 5,70. Deckenhöhe im UG ca. 3,10 m bis 3,70 m. Deckenhöhe im OG. ca. 3,5 m. Energieausweis liegt noch nicht vor. In Bearbeitung

Gaszentralheizung mit Deckenlüfter in den Produktionsräumen und im Lager und Flachspeicherheizkörper in den Büroflächen. Lastenaufzug für Mietflächen im UG und OG. Im Gebäude ist ein Erdgasanschluß für Produktionsbetrieb dimensioniert, vorhanden. Die überdachten Rampen sind mit zwei schwenkbaren Überladebrücken und zwei Hebebühnen ausgestattet. 5 Sektionaltore auf Rampenhöhe. Sozialräume und WC Anlagen nach den Anforderungen für Produktionsbetriebe vorhanden.

Gewerbegebiet im Stadtteil Nürnberg Langwasser südöstlich des Zentrums an einer sehr stark befahrenen Kreuzung. GE, GRZ 0,8, GFZ 1,6. Im Umfeld befinden sich Einzelhändler wie z.B. Harley-Davidson Motorrad, Renault Autohaus, Aldi Lebensmittel, Getränkeeinzelhandel sowie Großhandels- und Produktionsbetriebe. In unmittelbarer Nähe befindet sich das Langwasserbad, Klinikum Nürnberg-Süd sowie das Frankeneinkaufszentrum. Zentrenrelevanter Einzelhandel ist nicht zulässig. Bushaltestelle direkt vor dem Objekt. Zur Autobahn A 73 und zur A 6 sind es ca. 2,9 km. Entfernung zum Nürnberger Zentrum sind es ca. 6,3 km. Der Flughafen Nürnberg ist in ca. 15 Autominuten zu erreichen.

Ansprechpartner

Herr Arnold Graef
Telefon: +49 911 831460
Telefax: +49 911 831459
Mobil: +49 172 8901763
graef@ladenflaechen.de

Ich bin damit einverstanden, dass mir Karten von Google angezeigt werden. Es gelten die Datenschutzbedingungen von Google (https://policies.google.com/privacy).

Ich bin einverstanden

Objektanfrage

Sie haben noch Fragen zu dem Angebot oder wollen einen Besichtigungstermin vereinbaren, dann füllen Sie einfach das untenstehende Formular vollständig aus und wir setzen uns schnellstmöglich mit Ihnen in Verbindung.
* Pflichtfelder